Tổ chức không hợp lý trong kho hàng có thể gây trở ngại cho quá trình quản lý, dẫn đến tình trạng hàng hóa bị cản trở, hư hỏng và mất mát. Tuy nhiên, với một thiết kế và bố trí kho hàng thông minh, bạn có thể tăng tốc quá trình xử lý đơn hàng. Điều này sẽ cải thiện hiệu suất bán hàng và lợi nhuận của doanh nghiệp.
Hãy cùng Thành Tín 247 tìm hiểu chi tiết về khái niệm layout kho hàng, các loại layout phổ biến nhất 2026!
Layout kho hàng là gì?
Layout kho hàng là cách sắp xếp, bố trí hàng hóa trong không gian kho phù hợp với nhu cầu của từng doanh nghiệp, kho vận. Đây là một thiết kế nhằm tối ưu hóa các hoạt động tổng thể trong một nhà kho, giúp cải thiện việc quản lý, xuất nhập hàng và cả trong khâu sản xuất, phân phối.
Một layout kho hàng khoa học mang lại những lợi ích thiết thực cho doanh nghiệp như:
- Năng suất vượt trội: Nhân viên dễ dàng tìm và lấy hàng, rút ngắn thời gian xử lý đơn hàng.
- Không gian tối ưu: Tận dụng diện tích kho hiệu quả, lưu trữ được nhiều hàng hóa hơn.
- Tiết kiệm chi phí: Giảm chi phí nhân công, năng lượng và bảo trì thiết bị.
- An toàn được đảm bảo: Hạn chế rủi ro tai nạn lao động, bảo vệ sức khỏe nhân viên.
- Dịch vụ khách hàng chất lượng cao: Đáp ứng nhanh chóng nhu cầu khách hàng, tăng sự hài lòng.
Xem thêm: Quy trình quản lý kho hàng hiệu quả, tối ưu 7 bước

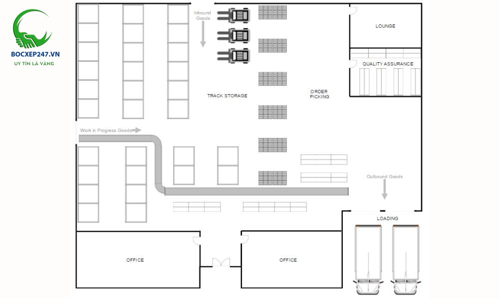
Các khu vực cần có trong layout kho hàng
Hiện nay, một layout kho hàng cơ bản sẽ bao gồm 3 khu vực chính:
- Khu vực hoạt động trong kho: Là nơi mà các hoạt động quan trọng như nhận hàng, lấy hàng, đóng gói được tiến hành. Đặc biệt, khu vực này thường được đặt gần cửa ra vào để thuận tiện trong quá trình vận chuyển.
- Khu vực lưu trữ trong kho (khu vực kho): Là nơi được dành riêng để đặt các giá kệ để lưu trữ hàng hóa. Thiết kế của khu vực này phải đảm bảo tận dụng tối đa không gian có sẵn và tạo điều kiện thuận tiện cho việc sắp xếp hàng hóa.
- Khoảng trống trong kho (không gian trống): Là yếu tố vô cùng quan trọng trong các kho hàng hiện đại. Đặc điểm quan trọng của khoảng trống là đủ rộng để các thiết bị như xe nâng, xe đẩy hoặc nhân viên có thể dễ dàng tiếp cận và truy xuất đến các kiện hàng.

Qua thời gian, để kho hàng có thể hoạt động hiệu quả, layout kho được chia thành 5 phần tương ứng với các nhiệm vụ cụ thể như:
- Khu vực xếp dỡ hàng (Loading & Uploading)
- Khu vực tiếp nhận hàng hóa (Reception)
- Khu vực lưu kho (Storage)
- Khu vực đóng gói (Picking)
- Khu vực vận chuyển hàng (Shipping)
Xem thêm: Dịch vụ bốc xếp hàng hóa
Các loại layout phổ biến, tối ưu nhất hiện nay
Dưới đây là 3 phương pháp bố trí layout kho hàng vô cùng hiệu quả và tối ưu mà Thành Tín 247 muốn giới thiệu đến bạn đọc:
Layout kho hàng chữ U
Bố cục hình chữ U được coi là phổ biến nhất do tính đơn giản và khả năng tái tạo ở hầu hết các địa điểm. Trong phương pháp bố trí kho này, khu vực gửi hàng và khu vực nhận hàng được bố trí gần như liền kề.

Để đảm bảo hoạt động vận hành hiệu quả, khu vực tiếp nhận hàng nên được đặt sau khu vực nhận hàng và khu vực đóng gói. Sau khi nhận hàng, hàng hóa sẽ được xử lý tại khu vực tiếp nhận trước khi được chuyển đến khu vực bảo quản phía sau nhà kho.
Tùy thuộc vào đặc điểm của sản phẩm, hàng hóa được phân chia thành hai khu vực lưu trữ, đó là kho lưu trữ động và kho lưu trữ tĩnh. Kho lưu trữ động được sử dụng cho hàng hóa có thời hạn sử dụng ngắn, hàng bán chạy hoặc hàng có sự thay đổi thường xuyên về số lượng, hình dáng,...
Trong khi đó, kho lưu trữ tĩnh được sử dụng cho hàng hóa có tính ổn định, hàng hóa với số lượng lớn hoặc dành cho khu vực lưu trữ đặc thù.
Xem thêm: Dịch vụ bốc xếp kho xưởng
Layout kho hàng chữ I
Layout kho hàng hình chữ I được chọn lựa phù hợp cho các nhà kho có khối lượng hàng hóa lớn. Hình dạng của kho được thiết kế theo dạng chữ "I" với khu vực nhận hàng ở một đầu và khu vực giao hàng ở đầu còn lại, trong khi khu vực lưu trữ nằm ở giữa.

Trong kho hình chữ I, hầu hết hàng hóa được sắp xếp ở phần ngoài của kho. Thường thì các mặt hàng được xếp chồng lên nhau theo kích thước của nhà kho để dễ dàng trong quá trình vận chuyển.
Một trong những lợi ích nổi bật của thiết kế hình chữ I là khả năng mở rộng không gian tiếp nhận hàng và vận chuyển hàng ở hai đầu khác nhau. Điều này tạo điều kiện cho việc có nhiều cửa hơn và giúp tối ưu hóa quá trình luồng hàng hóa, từ đó giảm thiểu nguy cơ hư hỏng.
Xem thêm: Dịch vụ chuyển kho xưởng trọn gói
Layout kho hàng chữ L
Thiết kế layout kho hàng hình chữ L là một lựa chọn không phổ biến. Đây là một cấu hình khác biệt so với thiết kế thông thường và thường được sử dụng cho những nhà kho có hình dạng chữ L. Bố cục của kho hình chữ L đặc trưng bởi việc đặt khu vực gửi hàng ở một bên và khu vực nhận hàng ở bên cạnh khác theo góc 90 độ.

Kho hàng hình chữ L và kho hàng hình chữ I có những ưu điểm tương tự nhau. Thiết kế hình chữ L giúp giảm tắc nghẽn trong kho bằng cách ngăn chặn sự giao thoa giữa các sản phẩm khi các xe hàng di chuyển ở các phía đối diện.
Tuy nhiên, một nhược điểm chính của bố cục hình chữ L là nó chiếm nhiều không gian để tạo ra dòng chảy hiệu quả cho quá trình vận hành.
Xem thêm: Dịch vụ bốc xếp Bình Dương
Cách vẽ layout kho hàng chuẩn nhất
Một layout kho hàng tốt sẽ đóng vai trò quan trọng trong việc cải thiện quy trình vận chuyển và hoạt động của xưởng. Thiết kế kho hàng cũng giúp tiết kiệm chi phí và tăng năng suất. Dưới đây là hướng dẫn về việc vẽ layout kho hàng theo quy cách đúng để đạt được hiệu quả mong muốn.
Chuẩn bị sơ đồ mặt bằng kho
Sơ đồ mặt bằng nhà kho sẽ cung cấp cho bạn một cái nhìn tổng quan về không gian lưu trữ mà bạn sẽ sử dụng để thiết kế layout phù hợp cho nhà kho. Nếu bạn là chủ nhà kho, bạn cần đến trực tiếp kho để đo đạc và tạo bản vẽ chi tiết với kích thước. Trong trường hợp bạn thuê kho, hãy yêu cầu chủ nhà kho cung cấp sơ đồ mặt bằng cho bạn.
Lựa chọn loại, phương pháp layout phù hợp
Hiện nay, có ba phương pháp phổ biến được sử dụng để vẽ sơ đồ kho hàng, bao gồm: sử dụng công cụ Excel, thuê kiến trúc sư và sử dụng các công cụ trực tuyến. Tùy thuộc vào chiến lược phát triển, dung lượng lưu trữ và ngân sách, các doanh nghiệp lựa chọn phương pháp thiết kế lưu trữ phù hợp với mô hình của mình.

Xem thêm: Thuê bốc vác theo giờ
4 nguyên tắc vàng trong lựa chọn layout kho hàng
Để lựa chọn layout kho hàng phù hợp, dưới đây là 4 nguyên tắc vàng được Thành Tín 247 tổng hợp:
- Mục tiêu của việc thiết kế nhà kho: Trước khi tiến hành thiết kế nhà kho, quan trọng nhất là xác định mục tiêu cuối cùng của doanh nghiệp là gì. Có nhiều mục tiêu dài hạn khác nhau, vì vậy cần tập trung vào mô hình kinh doanh, loại hàng hóa và yêu cầu cụ thể để đưa ra quyết định chính xác.
- Chọn vị trí kho xưởng: Nguyên tắc quan trọng ở đây là đáp ứng nhu cầu lưu trữ và vận chuyển hàng hóa. Việc lựa chọn một vị trí thuận tiện, đặc biệt là ở trung tâm, giúp tiết kiệm chi phí và thuận lợi cho việc giao hàng đến khách hàng.
- Kế hoạch bố trí kho: Sau khi đã xác định mục tiêu và vị trí của kho xưởng, việc lập kế hoạch bố trí kho sẽ được thực hiện để đảm bảo đáp ứng các mục tiêu đã đề ra và triển khai theo hướng đúng.
- Thiết kế nhà kho xanh: Bên cạnh việc đáp ứng hiệu quả lưu trữ, xuất nhập khẩu, nguyên tắc của "kho xanh" là tiêu chuẩn về sự bền vững, bảo vệ môi trường và thương hiệu đáng tin cậy.
Xem thêm: cung ứng lao động
Tối ưu hóa kho hàng với dịch vụ bốc xếp và vận chuyển trọn gói của Thành Tín 247
Như vậy, việc thiết kế layout kho hàng khoa học không chỉ dừng lại ở việc sắp xếp giá kệ, mà còn là một chiến lược quan trọng ảnh hưởng trực tiếp đến hiệu suất vận hành và lợi nhuận của doanh nghiệp. Tuy nhiên, không phải doanh nghiệp nào cũng có đủ nguồn lực và kinh nghiệm để tự mình xây dựng và quản lý một hệ thống kho bãi tối ưu. Đó là lý do tại sao dịch vụ bốc xếp và vận chuyển trọn gói của Thành Tín 247 đang trở thành xu hướng được nhiều doanh nghiệp, đặc biệt là các doanh nghiệp thương mại điện tử và các SME lựa chọn.
Thành Tín 247 là một trong những đơn vị cung cấp dịch vụ bốc xếp và vận chuyển uy tín tại Việt Nam. Với đội ngũ nhân viên chuyên nghiệp và dịch vụ đa dạng, chúng tôi mang đến giải pháp tối ưu cho các nhu cầu kho bãi và vận chuyển.
Cụ thể, Thành Tín 247 mang đến những ưu điểm vượt trội sau:
- Dịch vụ bốc xếp chuyên nghiệp: Đội ngũ nhân viên được đào tạo bài bản, đảm bảo xử lý hàng hóa nhanh chóng, an toàn và hiệu quả tại các khu vực như TP. Hồ Chí Minh, Bình Dương, Long An.
- Dịch vụ trọn gói, toàn diện: Bao gồm bốc xếp hàng hóa, chuyển kho xưởng trọn gói, và cung ứng lao động theo nhu cầu cụ thể của doanh nghiệp.
- Tối ưu hóa chi phí: Cung cấp các giải pháp linh hoạt như thuê bốc vác theo giờ, giúp doanh nghiệp tiết kiệm chi phí nhân công và vận hành.
- Phạm vi phục vụ rộng: Hỗ trợ bốc xếp tại nhiều khu vực như TP. Hồ Chí Minh, Bình Dương, và Long An.

Doanh nghiệp không cần lo lắng về các vấn đề hậu cần, có thể tập trung vào phát triển sản phẩm, marketing và bán hàng.
Xem thêm: Logistics xanh là gì? 5 chiến lược phát triển Logistics xanh
Xem thêm: Hệ Thống Quản Lý Kho Hàng WMS là gì? Thông tin chi tiết
Trên đây là bài viết hướng dẫn về phân loại và thiết kế layout kho hàng từ Thành Tín 247. Chúng tôi hy vọng rằng bài viết này sẽ mang lại thông tin hữu ích cho các bạn. Nếu bạn quan tâm hoặc muốn tìm một đơn vị cung cấp giải pháp kho vận và bốc xếp chuyên nghiệp, hãy liên hệ với Thành Tín 247 ngay để được hỗ trợ và tư vấn trong thời gian ngắn nhất.
Thông tin liên hệ
CÔNG TY TNHH THƯƠNG MẠI DỊCH VỤ VẬN TẢI NHÂN LỰC THÀNH TÍN 247
Địa chỉ: Số 141/30/7C Đường 339, Phường Phước Long B, Thành phố Thủ Đức, Thành phố Hồ Chí Minh, Việt Nam
Email: bocxep247.vn@gmail.com
Hotline: 0901302454
Website: https://bocxep247.vn/